s
Facebook Instagram YouTube
ooTel: 01/ 56-44-770 iii.PRODUKTI
.Eng.
 







 




GRENKE - klasicni lizing za pravne osebe














 

 

 

 

 

 

 

 

 

 

 

 

 

 

 

 

 

 

 

 

 

 

 

 

 

 

 

 





PRESEKAR,
servisna oprema, d.o.o.
Šruha 42
SI-1236 Trzin
Slovenija

Tel: 01/56-44-770
Fax: 01/56-44-772
Gsm: 041-638-609

prodaja@presekar.com aleksander.presekar@presekar.com

Autopstenhoj MAESTRO 32  

Dvosteberno elektro-mehansko dvigalo za servisiranje osebnih vozil – 3.200 kg

• Maestro 32
• Maestro 32 F BMW / Mini odobritev
• Maestro 32 Renault odobritev

Dvosteberno elektro mehansko dvigalo z rokami izvedbe spredaj ST (540-850 mm) ter zadaj ST (900- 1.425 mm) je primerno za servisiranje osebnih vozil. Dvigalo je asimetrične izvedbe, zato omogoča večji kot odprtja vrat vozila.

Nosilnost 3.200 kg.

Dvigalo ima dva elektro motorja (2 × 2,8 kW) ter elektronsko sinhronizacijo dviga, dvigalo je brez talne povezave, dvigalo ima hladno valjani vreteni in matice iz posebne visoko odporne zlitine to zagotavlja dolgo življenjsko dobo in izjemno nizke stroške vzdrževanja in obratovanja.

Značilnost Autopstenhoj dvigal so izjemno močni in stabilni ter hkrati vitki stebri.

Dvigalo je možno naročiti z različnimi izvedbami rok.

Dvigalo ima odobritev priznanih proizvajalcev vozil kot je npr. skupina BMW / Mini ter Renault.

Dvigalo je primerno tudi za varno dvigovanje električnih vozil.

Izjemno kvalitetna gradnja dvigala omogoča dolgo življenjsko dobo in minimalne stroške za vzdrževanje takšnega dvigala. Tovarna Stenhoj je leta 2017 praznovala svojo 100 letnico in je najstarejši proizvajalec dvigal na svetu. Podjetje PRESEKAR, Servisna oprema, d.o.o. je Autopstenhoj Cerfied Sales and Service Partner.


PREDNOSTI:
• Visoka stopnja varnosti pri uporabi dvigala
• Stabilna robustna konstrukcija
• Dvigalo narejeno iz visokvalitetnega jekla
• Brez talne povezave
• Notranje vležajenje rok dvigala – zaprt sistema notranjega ozobja
• Nizka minimalna višina
• Dva motorja – elektronska sinhronizacija
• Asimetrična konstrukcija – velik kot odprtja vrat vozila
• Hladno valjano navojno vreteno in kvalitetne nylon matice
• Izjemno dolga življenjska doba
• Zagotovljeni rezervni deli, servis in vzdrževanje dvigala
• Nizki stroški uporabe dvigala




TEHNIČNI PODATKI:


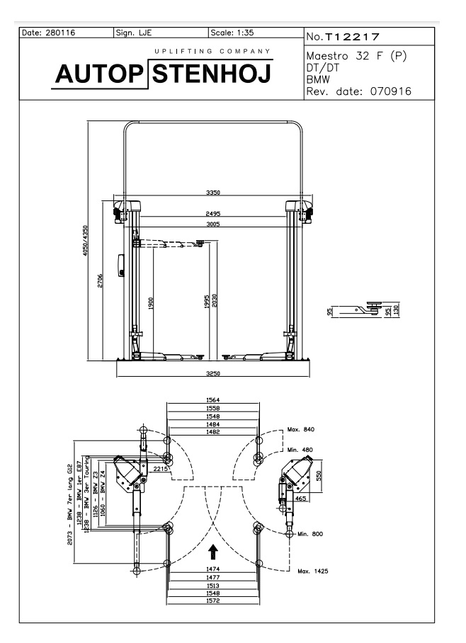
Nosilnost dvigala: 3.200 kg
Upor. višina dviga: 1.900 mm
Delovna višina dviga: 1.995 – 2.025 mm
Višina stebrov: 2.706 mm
Višina portala: 4050 – 4350 mm poljubno prilagodljivo glede na višino delavnice
Čas dviga/spusta: Približno 40 sekund
Minimalna višina: 95 mm
Širina med stebri: 2.365 – 2.565 mm – prilagodljivo glede na prostor v delavnici
Zunanja širina (stebri): 2.875 – 3.075 mm
Zunanja širina (osnovna plošča): 3.120 – 3.320 mm
Dolžina rok dvigala: spredaj – izvedba DT 540 – 850 mm
  zadaj – izvedba ST 900 – 1.425 mm
Moč motorja: 2 x 2,8 kW
Priključna napetost: 3 x 230 / 400V – 50 Hz – 35 / 25 A
Standardna barvna kombinacija: Roke dvigala RAL 3020 / stebri dvigala RAL 7016



DIMENZIJE dvigala >>


Podatki za MONTAŽO dvigala (temelji, dimenzije) >>



V kolikor potrebujete ponudbo ali dodatne informacije Vas prosimo, da posredujete vaša vprašanja na elektronski naslov:  prodaja@presekar.com


<< NAZAJ
.



1