s
Facebook Instagram YouTube
ooTel: 01/ 56-44-770 iii.PRODUKTI
.Eng.
 







 




GRENKE - klasicni lizing za pravne osebe














 

 

 

 

 

 

 

 

 

 

 

 

 

 

 

 

 

 

 

 

 

 

 

 

 

 

 

 

 

 

 

 

 

 

 





PRESEKAR,
servisna oprema, d.o.o.
Šruha 42
SI-1236 Trzin
Slovenija

Tel: 01/56-44-770
Fax: 01/56-44-772
Gsm: 041-638-609

prodaja@presekar.com aleksander.presekar@presekar.com

Autopstenhoj MAESTRO 2.50 NxT  

Dvosteberno elektro-mehansko simetrično dvigalo za servisiranje dostavnih in osebnih vozil – 5.000 kg

Dvosteberno elektro mehansko dvigalo nove generacije z oznako NxT s tridelnimi rokami izvedbe spredaj DT (906 - 1.926 mm) ter zadaj DT (906- 1.926 mm) je primerno za servisiranje osebnih in lahkih dostavnih vozil. Dvigalo je simetrične izvedbe ter z veliko širino med stebri dvigala, zato omogoča večji kot odprtja vrat vozila.

Nosilnost 5.000 kg.

Dvigalo ima dva elektro motorja (2 × 2,8 kW) ter elektronsko sinhronizacijo dviga, dvigalo je brez talne povezave. Dvigalo ima hladno valjani vreteni in matice iz posebne visoko odporne zlitine, ki zagotavlja dolgo življenjsko dobo in izjemno nizke stroške vzdrževanja in obratovanja.

Izvedbe Autopstenhoj dvigal z oznako 2.xx imajo unikatne stebre varjene iz štirih cevi ter voziček vležajene s kovinskimi ležaji.

Dvigalo je primerno tudi za varno dvigovanje električnih vozil.

Izjemno kvalitetna gradnja dvigala omogoča dolgo življenjsko dobo in minimalne stroške za vzdrževanje takšnega dvigala. Tovarna Stenhoj je leta 2017 praznovala svojo 100 letnico in je najstarejši proizvajalec dvigal na svetu. Podjetje PRESEKAR, Servisna oprema, d.o.o. je Autopstenhoj Cerfied Sales and Service Partner.


PREDNOSTI:
• Visoka stopnja varnosti pri uporabi dvigala
• Stabilna robustna konstrukcija
• Brez talne povezave
• Dvigalo narejeno iz visokvalitetnega jekla
• Stebri dvigala varjeni iz štirih cevi
• Kovinski ležaji vozička dvigala
• Notranje vležajenje rok dvigala – zaprt sistema notranjega ozobja
• Nizka minimalna višina
• Dva motorja – elektronska sinhronizacija
• Simetrična konstrukcija – velik kot odprtja vrat vozila
• Hladno valjano navojno vreteno in kvalitetne nylon matice
• Izjemno dolga življenjska doba
• Zagotovljeni rezervni deli, servis in vzdrževanje dvigala
• Nizki stroški uporabe dvigala



PREDSTAVITVENA BROŠURA [pdf] >



TEHNIČNI PODATKI:


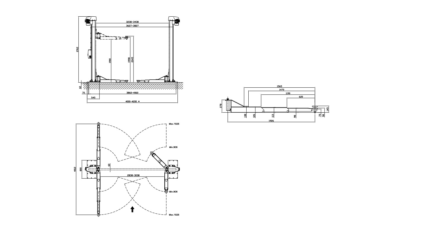
Nosilnost dvigala: 5.000 kg
Upor. višina dviga: 1.900 mm
Delovna višina dviga: 2.000 – 2.045 mm
Višina stebrov: 2.912 mm
Višina portala: 4.885 mm – 5.245mm, poljubno prilagodljivo glede na višino delavnice
Čas dviga/spusta: Približno 55 sekund
Minimalna višina: 98 - 145 mm
Vozna širina med stebri: 2.838 – 3.038 mm odvisno od postavitve stebrov
Širina med stebri: 3.238 -3.438 mm
Zunanja širina (stebri): 3.627 – 3.827 mm
Zunanja širina (osnovna plošča): 4.000 – 4.200 mm
Dolžina rok dvigala: spredaj – izvedba DT 906 – 1.926 mm
  zadaj – izvedba DT 906 – 1.926 mm
Moč motorja: 2 x 2,8 kW
Priključna napetost: 3 x 230 / 400 V – 50 Hz – 35 / 25 A
Standardna barvna kombinacija: Roke dvigala: RAL 3020, stebri dvigala: RAL 7016



DIMENZIJE dvigala >>


Podatki za MONTAŽO (temelji, dimenzije) >>




V kolikor potrebujete ponudbo ali dodatne informacije Vas prosimo, da posredujete vaša vprašanja na elektronski naslov:  prodaja@presekar.com


<< NAZAJ
.



1